

Residence Fenice
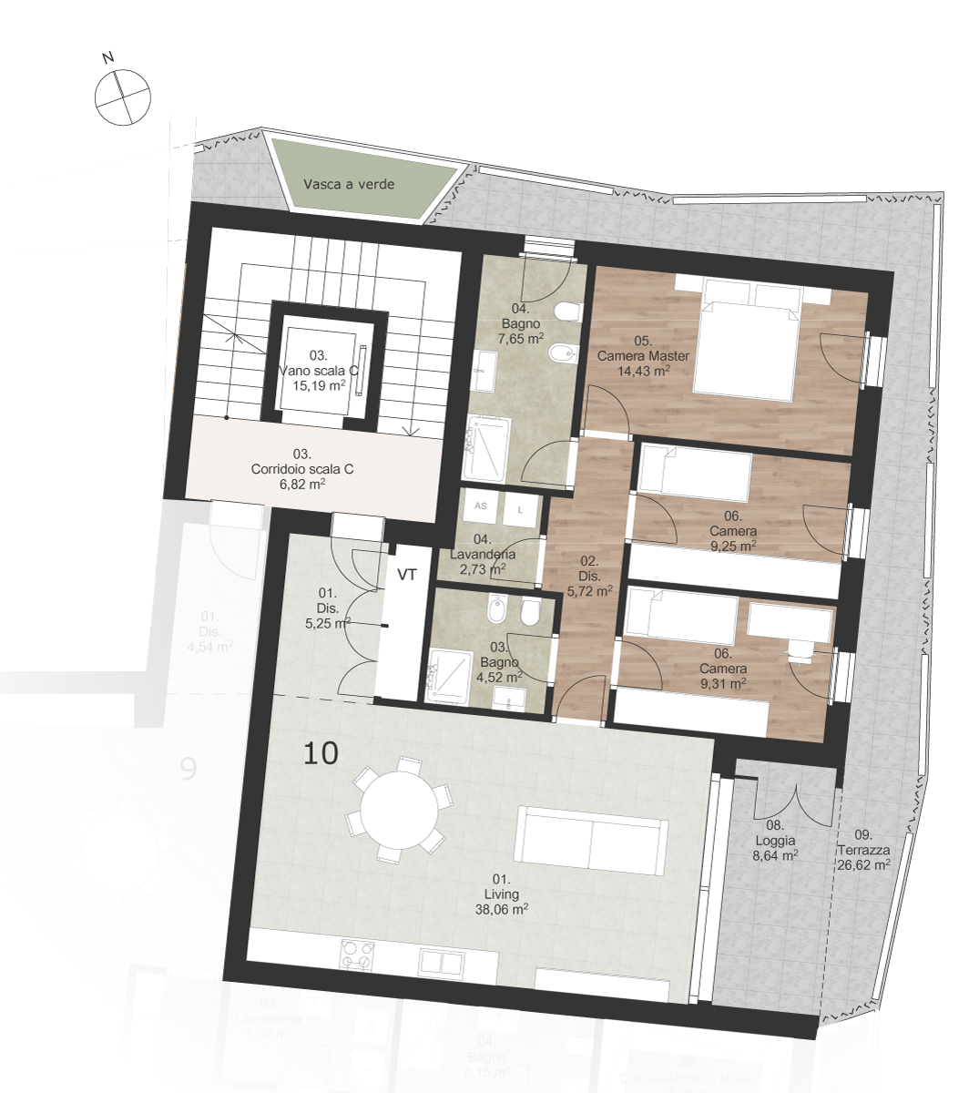
Unità 10
- 132mq di superficie
- Primo piano
- 3 Camere de letto
- 2 Bagni e 1 lavanderia
- Terrazzo
- Loggia
L’unità abitativa 10 si trova al primo piano, con un emozionante loggiato e terrazza. Due bagni, una lavanderia e 3 camere da letto all’interno di 132mq di superficie totale.
Scopri i dettagli
La planimetria
Le tecnologie di ultima generazione

Ventilazione Meccanica Controllata:
Doppio flusso autonomo composto da un’unità di ventilazione che può essere posizionato in un controsoffitto o in un locale tecnico, composto da uno scambiatore di calore in controcorrente, un ventilatore collegato alla rete di estrazione dagli ambienti tecnici, e di un ventilatore di immissione che provvede al rinnovo dell'aria negli ambienti nobili.
Fotovoltaico:
Sarà installato un impianto fotovoltaico conforme alle normative vigenti, con una capacità minima di 3 kW per ciascuna unità immobiliare. Questo sistema garantirà un'efficienza energetica ottimale, permettendo non solo di ridurre i costi delle bollette elettriche, ma anche di contribuire in modo significativo alla sostenibilità ambientale.
Domotica unifilare:
Si potranno comandare in modo tradizionale oppure tramite smartphone o anche con i dispositivi di controllo vocale come Alexa e Google Home. In questo modo si potrà accendere le singole luci o gestire scenari con l'attivazione di più luci anche da remoto.Richiedi informazioni
Sei interessato a questa unità?
Se questa soluzione sembra proprio fare al caso tuo, non perdere l’occasione di farla tua. Contattaci per avere maggiori informazioni o prenotare una consulenza con i nostri tecnici specializzati.
