Unità abitative
Unità abitative
Residence Fenice

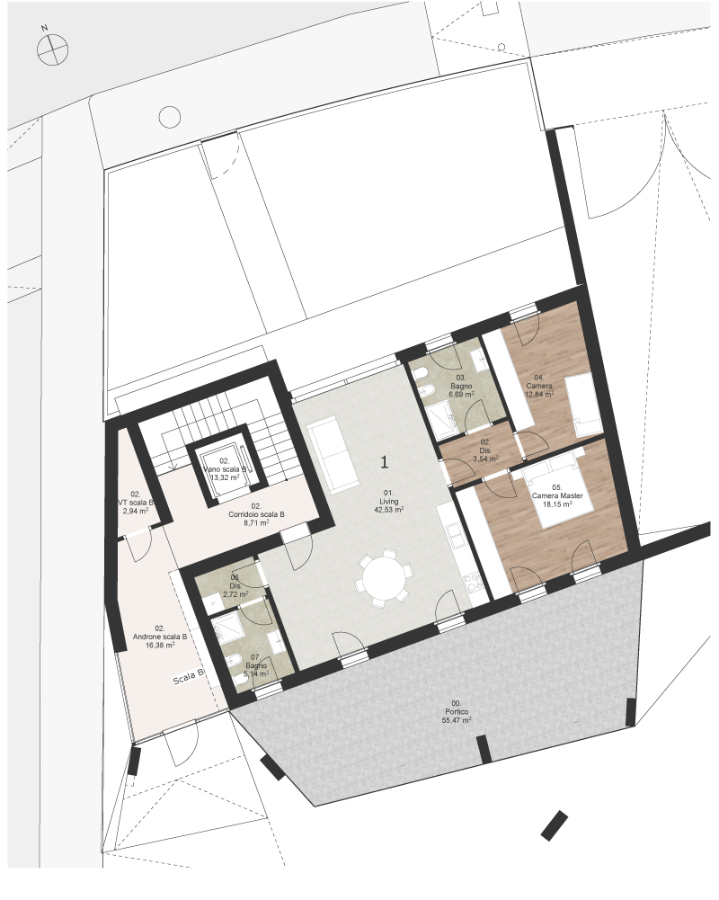
Unità 1

L’unità abitativa 1 si trova al primo piano, un portico di più di 55mq, Due bagni e due camere da letto contribuiscono a rendere perfetta quest’abitazione all’interno di 147mq di superficie totale.

Scopri i dettagli

La planimetria

Le tecnologie di ultima generazione

Richiedi informazioni

Sei interessato a questa unità?

Se questa soluzione sembra proprio fare al caso tuo, non perdere l’occasione di farla tua. Contattaci per avere maggiori informazioni o prenotare una consulenza con i nostri tecnici specializzati.